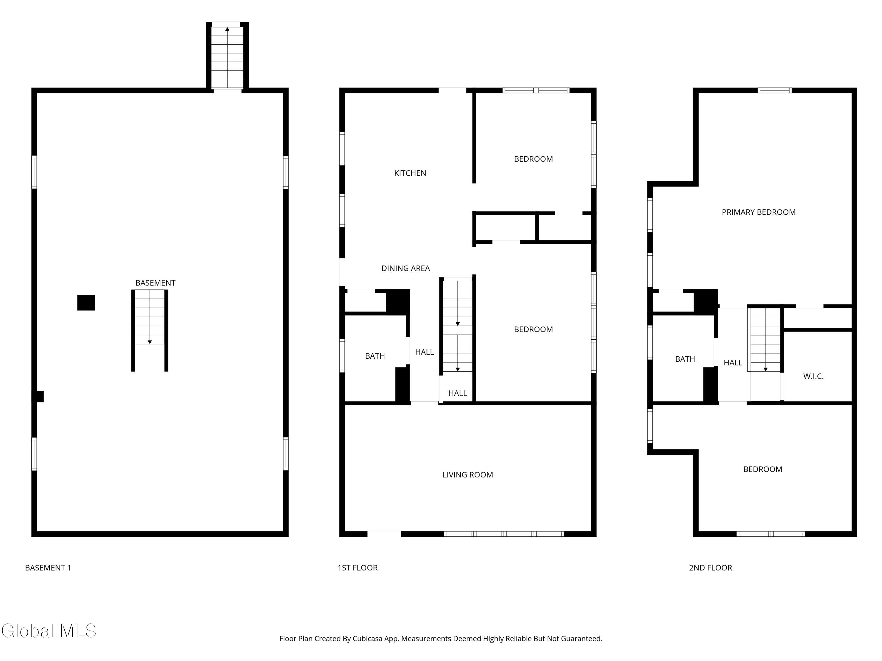
This newly updated home offers a large eat in kitchen with peninsula / breakfast bar, 4 bedrooms and 2 full baths and living room! A ductless mini split has been installed to keep cool on those hot summer nights! New vinyl replacement windows have been installed! Close to all shops, restaurants and downtown Schenectady! Nice sized back yard for hosting friends and family! All thats left to do is move in - book your showing today!
CONTACT A
BUYER'S AGENT
BUYER'S AGENT
Connect with a local buyer's agent who advertises with Albany.com
Features
Square Feet: 1,650
Town: Schenectady
Bedrooms: 4
Full Bathrooms: 2
Estimated Taxes: $5,200
Water: Public
Sewer: Public Sewer
Heat: Natural Gas
Garage: 0
Property Style: Cape Cod
Exterior: Aluminum Siding
Exterior Features: Drive-Paved
Cooling: Ductless
Parking Spaces: 2
Location
Copyright 2025 Global MLS, Inc.
Information is not guaranteed
Did we miss one? Did one of these places close? Send us a note!



































