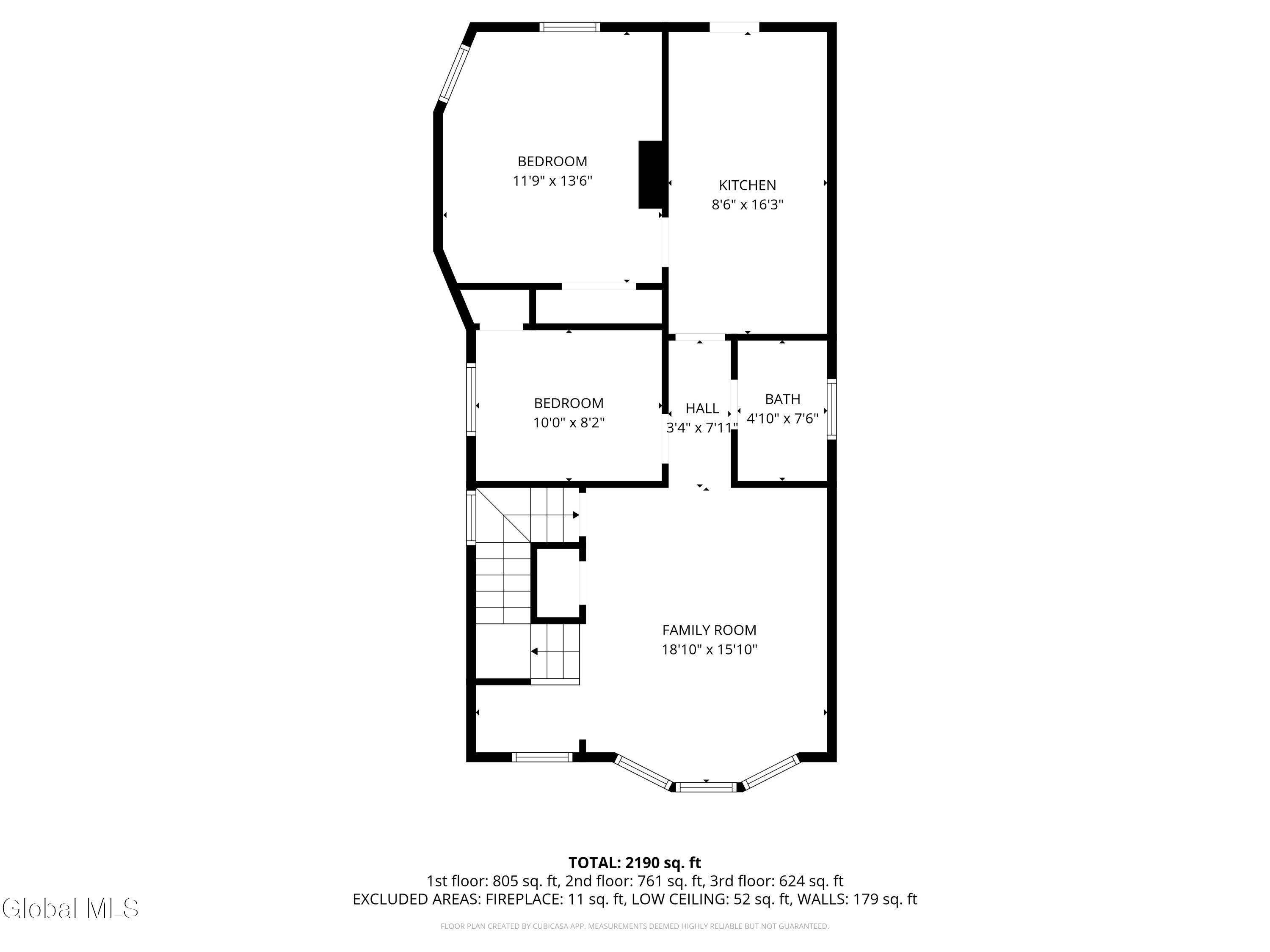
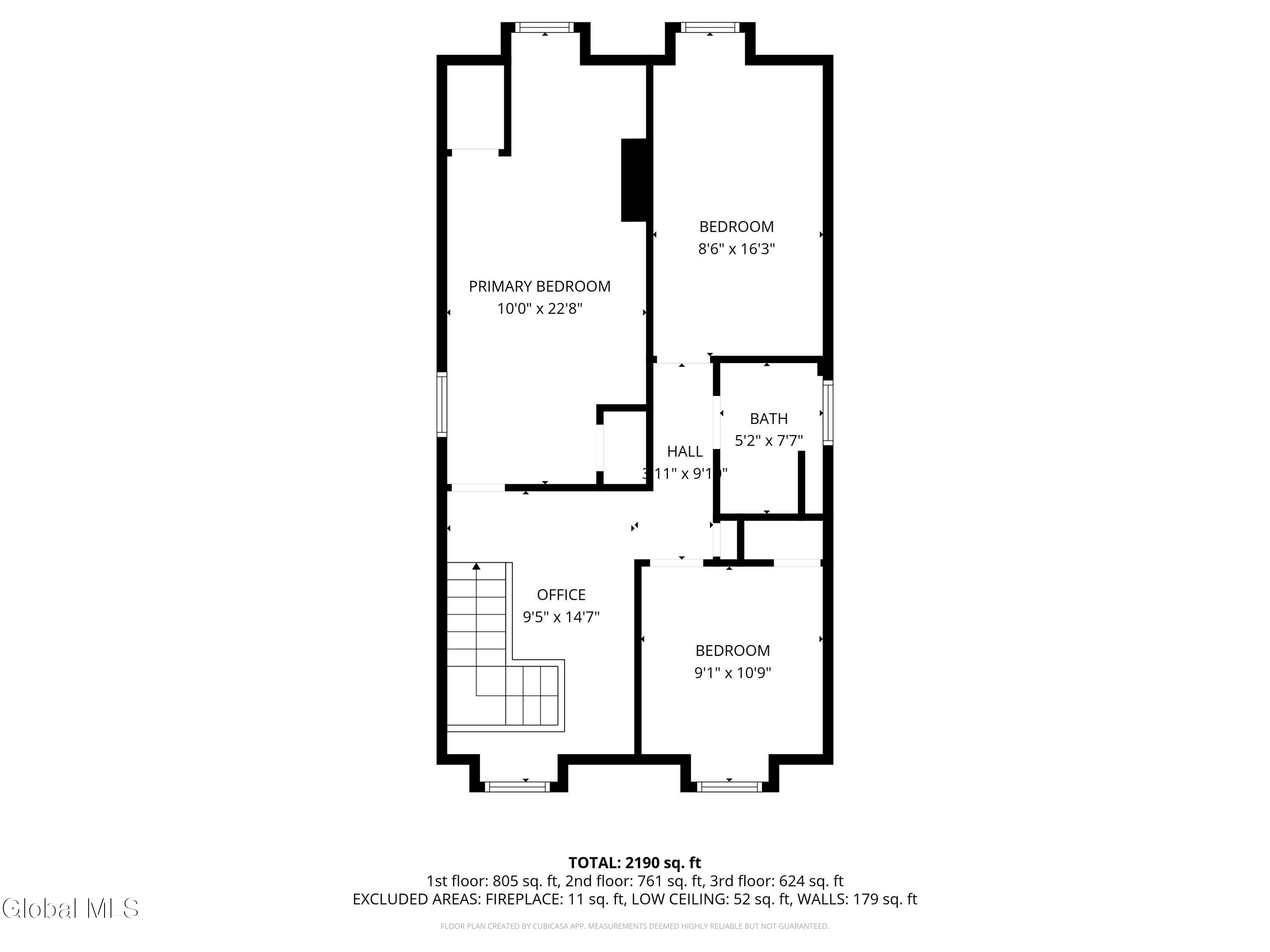
Opportunity is knocking! Don't miss this amazing Pine Hills (2) family gem! This is inclusive of (2) additional parcels 846 Chestnut St. and 848 Chestnut St.. This turnkey property has consistently been updated through the years, there's a cozy 1st floor unit inclusive of (2) bedrooms with a living room/dining area, beautiful hardwood floors, and an updated bath. The 2nd unit consists of the 2nd and the 3rd floors providing (5) bedrooms and (2) full baths! The hardwoods floors are spread throughout each floor, and the baths have been updated here as well! Separate utilities for each unit with gas hot water radiators for toasty heat and ductless splits for cold AC each for each unit. There's a generous composite deck offering covered outdoor space for the 1st and 2nd floor, both offer access to the spacious yard. Did you see the (2) car detached garage?? There's plenty of off street parking here. The basement has its own entry making it easy access without going through the house or disturbing residents. Centrally located with easy access to public transportation, highways, eateries, library, and more! Make this your March Madness slam dunk! At seller's request showings begin Sunday 03/29.
BUYER'S AGENT
Connect with a local buyer's agent who advertises with Albany.com
Features
Location
Copyright 2026 Global MLS, Inc.
Information is not guaranteed


























































