113 Sand Hill Road
Greenfield Center, NY 12833
Active
$872,649
Listing by:
Melissa C Cartier
Cartier Real Estate Group LLC
518-321-5762
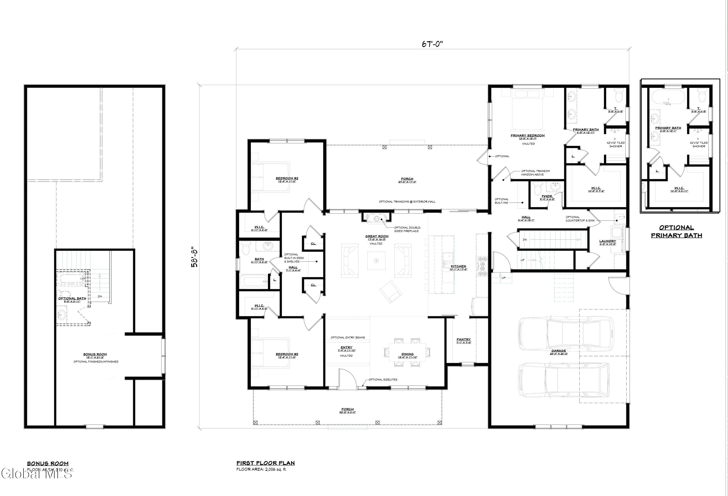
Cartier Construction is pleased to offer 8 opportunities to build custom on a private lot on Sand Hill Rd. in Greenfield, Saratoga Schools! Lots range from 1.5 acres - 13.36 acres each all feature wooded areas and unique build sites just 6 miles from Broadway in Saratoga! Six plans offered on any of the 8 lots OR build totally custom with Cartier Construction! *This plan, The Grange, is a terrific 3BR 2.5 Bath ranch with the option to add an unfinished or finished bonus room over garage. Priced here w/ out. Wide open living space, a private vaulted primary suite on one side and a guest wing on the opposite end holding two bedrooms and a bathroom with office nook between provides great privacy for all! The centralized great room offers a stunning kitchen with oversized island and walk-in pantry with window! Enjoy the lovely front porch AND covered spacious back porch on this 8.84 acre lot with trees on each side for tremendous privacy! Included features are impressive: 9' ceilings, HARDWOOD finished-on-site floors, solid wood doors, 42'' kitchen cabinetry, quartz/granite counters, propane gas FP, finished-on-site 4'' wide real maple hardwood floors, Harvey double-hung windows, tiled bathrooms, a tiled primary shower, central air, covered front porch and more! Schedule a site walk to compare lots and plans. Each house listed can be built on ANY lot: Prices vary by home size and lot size/location and will be provided by builder rep upon request.* Lots are owned by builder. Building/construction loans or cash are required to build, no end loans. Contact listing agent before walking the lots please.* Let us show you the terrific value available for your new home on one of these beautiful wooded lots. Agent related by marriage to builder. Price increased 1/30/26 due to NYS energy code requirements.
BUYER'S AGENT
Connect with a local buyer's agent who advertises with Albany.com
Features
Location
Copyright 2026 Global MLS, Inc.
Information is not guaranteed












