10 Island Drive
Mechanicville, NY 12118
Active
$543,000
Listing by:
Katina M Terrault
Katina M. Terrault
518-925-6992
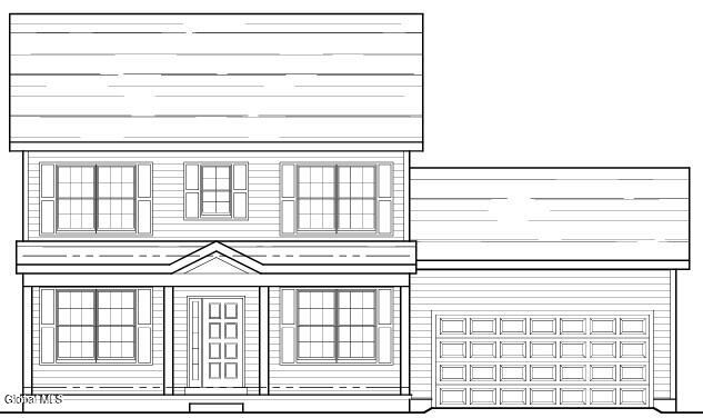
TO BE BUILT! This new construction colonial home is scheduled to break ground spring 2026 Located in the Town of Halfmoon, Shenendehowa School District in the Hank's Hollow Development. Home features Livingroom, kitchen, dining room, 2.5 bathrooms, laundry room on first floor with walkout basement.
CONTACT A
BUYER'S AGENT
BUYER'S AGENT
Connect with a local buyer's agent who advertises with Albany.com
Features
Square Feet: 1,920
Town: Mechanicville
Bedrooms: 3
Full Bathrooms: 2
Estimated Taxes: $6,500
Water: Public
Sewer: Public Sewer
Heat: Forced Air, Natural Gas
Garage: 2
Property Style: Colonial
Exterior: Vinyl Siding
Exterior Features: Drive-Paved
Cooling: Central Air
Parking Spaces: 4
Zoning: Single Residence
Location
Copyright 2026 Global MLS, Inc.
Information is not guaranteed
Did we miss one? Did one of these places close? Send us a note!

