107 Factory Street
Schoharie, NY 12157
Active
$179,000
Listing by:
Pearl Ruby Torres
Keller Williams Realty Hudson Valley North
845-461-5132
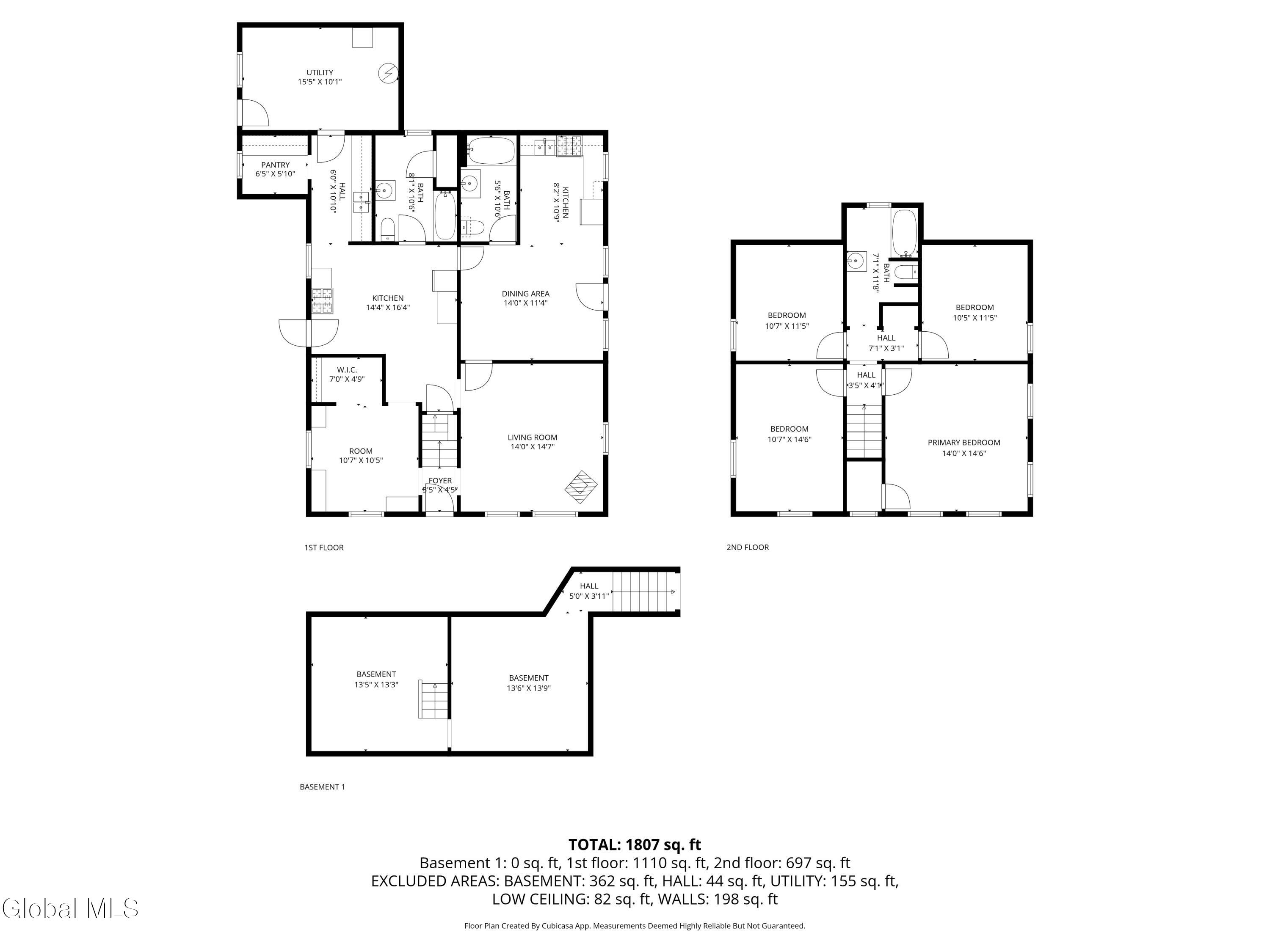
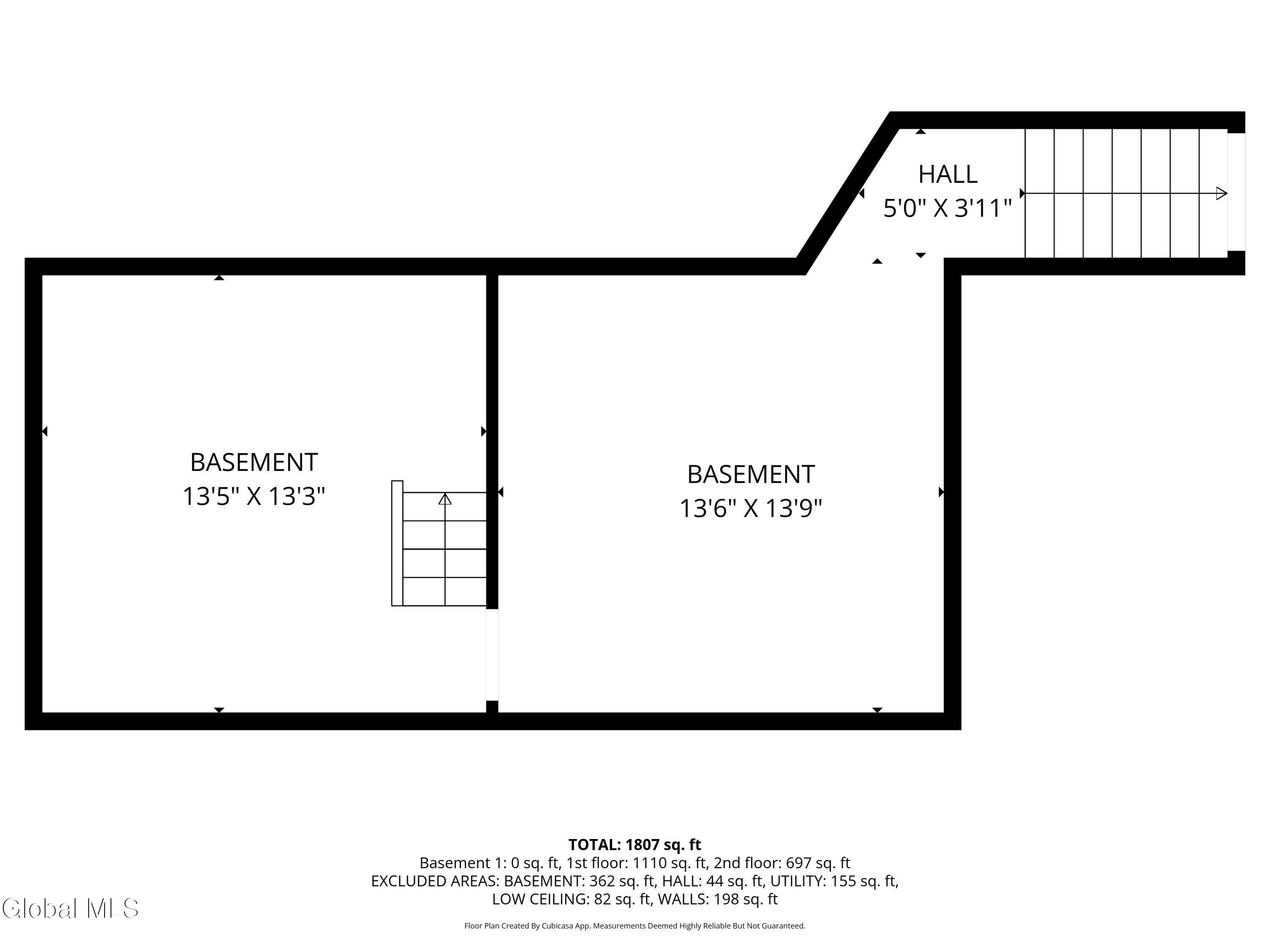
Investor alert! Great value that can easily be a two family home with separate entrance and driveway. Farmhouse Colonial with Wraparound Porch, Barn & dual road frontage located in quaint area of Gallupville. This charming 2,000 sq ft farmhouse colonial offers space, flexibility, and opportunity on a large, level lot with road frontage on both Factory Street and School Street, located in Schoharie School District. It has welcoming wraparound porch, and is ideal for buyers looking to restore and customize a classic home with multiple use possibilities. The home offers 5 bedrooms and 3 full bathrooms. A standout feature is the first floor primary bedroom with en-suite bath, complete with a kitchenette, separate entrance, and its own driveway, making it ideal for multi generational living, a home office, guest suite, or potential studio setup. Buyers must perform their own due diligence regarding two-family or accessory apartment use, including any required variances. The first floor includes two full bathrooms, a galley kitchen with pantry and eating area, dining room, utility room, and flexible living spaces. The living room features a wood stove and propane heater, providing supplemental heat and charm. Upstairs offers 4 bedrooms and a full bath, metal roof, 4 heating zones, Oil furnace with newer oil tank, Water heater 3 years old, two driveways, barn, wood shed, storage room, and additional outbuildings (in need of repair). Home requires some painting and updates, and the barn and outbuildings will need work, presenting a strong opportunity to build big equity to this versatile property. Sold as-is. Ideal for investors, renovators, or buyers seeking space, character, and flexible use potential. Just 45 minute commute to Capital District.
BUYER'S AGENT
Connect with a local buyer's agent who advertises with Albany.com
Features
Location
Copyright 2026 Global MLS, Inc.
Information is not guaranteed


























































